一戸建て
練馬区春日町1丁目戸建

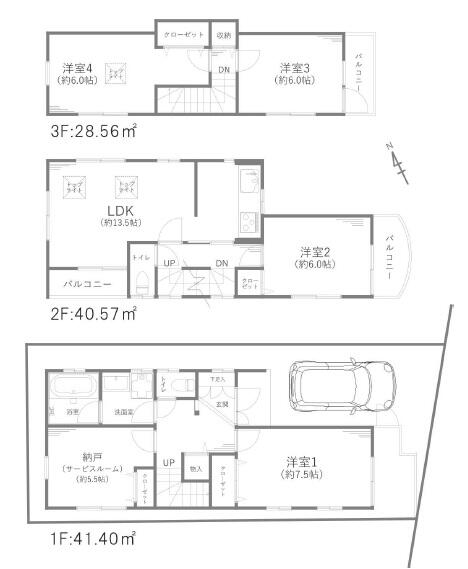
| 間取り | 建物面積 | 土地面積 | 建物構造 | 築年月 |
|---|---|---|---|---|
| 4SLD | 110.53m² | 81.48m² | 木造 3階建 |
2001年02月 |
内覧希望・詳細を知りたい方はこちら
お電話でお問い合わせの際は、物件番号「S-05779」とお伝えください。
0120-399-456
営業時間 9:00~19:00
※地図は実際の場所とは異なる場合がございます。
物件の購入を検討される際は、弊社までご連絡頂き直接ご確認下さい。
PROPERTY DETAILS
物件概要
| 所在地 | 東京都練馬区春日町1丁目24-4 | ||
|---|---|---|---|
| 交通 | 都営大江戸線「練馬春日町」駅徒歩7分 | ||
| 物件種別 | 一戸建て | 間取り | 4SLD |
| 土地面積 | 81.48m² | 建物面積 | 110.53m² |
| 土地権利 | 所有権 | 地目 | 宅地 |
| 都市計画地域 | 市街化区域 | 用途地域 | 第一種住居地域 |
| 建ぺい率 | 60% | 容積率 | 300% |
| 構造 | 木造 | 規模 | 3階建 |
| 築年月 | 2001年02月 | 方位 | 東 |
| 引渡し | 即可 | 現況 | 現空 |
| 設備 | フローリング , 追い炊き風呂 , 浴室換気乾燥機 , ウォシュレット , シャンプードレッサー , システムキッチン , TVドアホン | ||
| 施設 | 東京電力 , 都市ガス , 公営水道 , 本下水 | ||
| 駐車場 | カースペース1台分あり | ||
| 接道 | 東側約5.0m 公道 間口約6.0m | ||
| 取引態様 | 仲介 | 建築確認番号 | - |
内覧希望・詳細を知りたい方はこちら
お電話でお問い合わせの際は、物件番号「S-05779」とお伝えください。
0120-399-456
営業時間 9:00~19:00
COMPANY
会社概要

株式会社リポイント
〒176-0001東京都練馬区練馬1-31-7 十字ビル1階
TEL : 03-3993-4711
営業時間 9:30~18:30(火・水曜定休日)
2路線利用可能 4LDK+S、ゆとりの5部屋 リフォーム済
2路線利用可能 リフォーム済 ゆとりの5部屋
◆練馬春日町駅まで徒歩7分、豊島園駅まで徒歩13分
◆2025年12月リフォーム済
リフォーム内容(キッチン、浴室、洗面室、トイレ、床、壁、天井、照明器具など)
◆練馬東小学校(約450m)、練馬東中学校(約1.0Km)